Bakı şəhəri, Sabunçu rayonu, Nardaran qəsəbəsi ərazisində reallaşdırılması nəzərdə tutulan bu fərdi yaşayış evi layihəsi, müasir memarlıq prinsipləri və inşaat normaları əsasında hazırlanmışdır. Layihənin bütün işçi cizgiləri fəaliyyətdə olan inşaat norma və qaydalarına uyğun olaraq yerinə yetirilmişdir.
Əsas Texniki Göstəricilər
Layihənin mühəndislik və planlama parametrləri aşağıdakı kimidir:
Ümumi torpaq sahəsi: 0.1 ha (10 sot).
Tikilialtı sahə: 263.04 m².
Ümumi sahə: 477.27 m².
Tikinti həcmi: 1376.0 m³.
Mərtəbə sayı: 2 mərtəbə.
Otaqların sayı: 6 otaq.
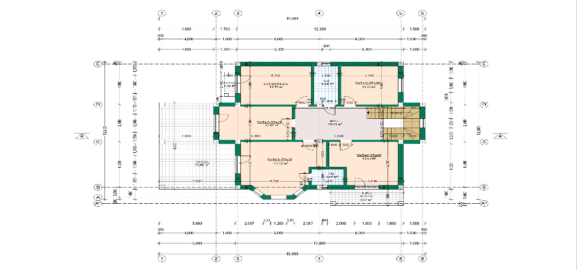
Məkan Planlaması və Funksionallıq
Villa layihəsi geniş daxili bölgü və xarici istirahət zonaları ilə xarakterizə olunur:
Yaşayış Sahələri: İkinci mərtəbə planında 22.40 m²-lik geniş valideyn yataq otağı, iki uşaq otağı (15.12 m² və 15.94 m²), 15.96 m²-lik holl və 11.50 m²-lik qarderob otağı yer alır.
Sanitar Qovşaqlar: İkinci mərtəbədə ümumilikdə 3 sanitar qovşağı (5.40 m², 4.32 m² və 4.32 m²) nəzərdə tutulmuşdur.
Yardımçı Tikililər: Həyətyanı sahədə 39.47 m²-lik talvar (maşın dayanacağı) və 20.36 m²-lik texniki otaq/sanitar qovşaq kompleksi yerləşir.
Eksteryer və Landşaft Özəllikləri
Layihənin xarici görünüşü və həyət nizamı estetik və funksional vəhdət təşkil edir:
Fasad Dizaynı: Binanın memarlıq həllində klassik detallarla müasir elementlərin sintezi müşahidə olunur; geniş eyvanlar, arkalı sütunlar və neoklassik dekorativ elementlər fasadın əsasını təşkil edir.
İstirahət Zonası: Həyətdə müasir dizaynlı, pilləli girişi olan hovuz (B sahəsi) və dincəlmək üçün geniş terras sahəsi planlaşdırılmışdır.
Landşaft: Həyətyanı sahə yaşıllıq zolaqları, dekorativ palmalar, rəngarəng gül kompozisiyaları və səliqəli piyada yolları ilə tamamlanmışdır.
İşıqlandırma: Həyət boyunca klassik üslublu işıq dirəkləri və divar fənərləri quraşdırılmışdır.
Bu layihə Nardaran qəsəbəsinin iqlim və relyef şəraiti nəzərə alınaraq, həm daimi yaşayış, həm də bağ evi konseptinə uyğun şəkildə işlənmişdir.
