Müasir Üslubda Villa Layihəsi: Mərdəkan

Müasir Üslubda Villa Layihəsi: Mərdəkan
Müasir Üslubda Villa Layihəsi: Mərdəkan
Müasir Üslubda Villa Layihəsi: Mərdəkan
Müasir Üslubda Villa Layihəsi: Mərdəkan
Müasir Üslubda Villa Layihəsi: Mərdəkan
Müasir Üslubda Villa Layihəsi: Mərdəkan
Müasir Üslubda Villa Layihəsi: Mərdəkan
Müasir Üslubda Villa Layihəsi: Mərdəkan
Müasir Üslubda Villa Layihəsi: Mərdəkan
Müasir Üslubda Villa Layihəsi: Mərdəkan
Müasir Üslubda Villa Layihəsi: Mərdəkan

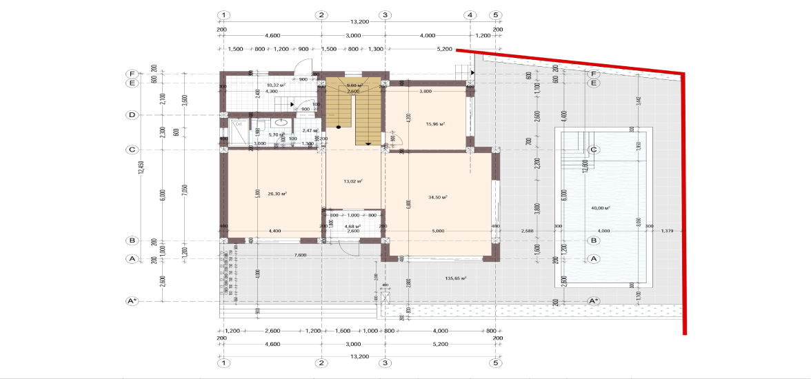
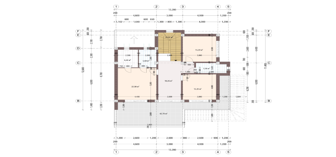
Bu layihə müasir memarlıq yanaşması ilə funksionallığı birləşdirən, rahat və estetik fərdi yaşayış evi kompleksi kimi nəzərdə tutulmuşdur. Hər bir sahə gündəlik həyatın komfortunu artırmaq və açıq-qapalı məkanlar arasında harmoniyanı təmin etmək məqsədilə planlaşdırılmışdır.

A – Fərdi yaşayış evi (136.38 m²)
Layihənin əsas hissəsini təşkil edən yaşayış evi geniş və işıqlı interyerə malikdir. Açıq planlı məkanlar, böyük şüşə səthlər və terrasla birbaşa əlaqə evə həm rahatlıq, həm də vizual genişlik qazandırır.

B – Texniki otaq (12.42 m²)
Evin mühəndis sistemlərinin yerləşdirilməsi üçün ayrılmış bu sahə funksional və səliqəli şəkildə planlaşdırılmışdır, əsas yaşayış zonalarından təcrid olunmuşdur.

C – Hovuz
Həyət məkanının mərkəzi elementi olan hovuz istirahət və əyləncə üçün nəzərdə tutulmuşdur. Açıq hava zonası ilə vizual və funksional əlaqədə yerləşdirilmişdir.

D – Yay mətbəxi (43.67 m²)
Açıq havada ailə və qonaqlarla vaxt keçirmək üçün ideal olan yay mətbəxi geniş sahəsi və hovuz zonası ilə əlaqəsi sayəsində layihənin ən aktiv məkanlarından biridir.

E – Sanitar qovşağı (6.43 m²)
Yay zonalarına yaxın yerləşən sanitar qovşaq istifadə rahatlığı baxımından optimal mövqedə planlaşdırılmışdır.

F – Texniki otaq (3.98 m²)
Hovuz və açıq məkanların texniki ehtiyaclarına xidmət edən əlavə texniki sahədir.

G – Ocaqbaşı
Ailəvi toplantılar və açıq hava istirahəti üçün nəzərdə tutulmuş ocaqbaşı sahəsi layihəyə isti və sosial xarakter qatır.

M – Talvar
Kölgəlik funksiyası daşıyan talvar yay aylarında açıq məkan istifadəsini maksimum dərəcədə rahat edir və ümumi landşaftla ahəng təşkil edir.

Bu layihə yaşayış, istirahət və sosial məkanların balansını qoruyaraq, həm gündəlik həyat, həm də qonaq qəbulunu eyni dərəcədə komfortlu edən müasir bir fərdi yaşayış konsepsiyası təqdim edir.