Müasir memarlıq üslubunda layihələndirilmiş bu villa, həm funksionallığı, həm də vizual cəlbediciliyi ilə seçilən premium bir yaşayış məkanıdır. Layihənin hər bir detalı dinc və lüks həyat tərzi axtaranlar üçün xüsusi olaraq düşünülmüşdür.
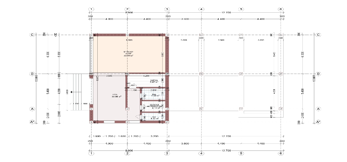
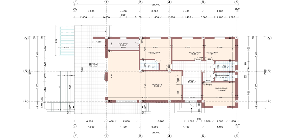
Geniş Yaşayış Sahəsi və İnteryer İmkanları Evin əsasını 210.76 m²-lik fərdi yaşayış sahəsi təşkil edir. Daxili planlama müasir ailənin bütün ehtiyaclarını qarşılayacaq şəkildə bölünüb. İşıqlı otaqlar, geniş holl və erqonomik məkan bölgüsü evin daxilində maksimum sərbəstlik və rahatlıq təmin edir.
Açıq Havada İstirahət: Geniş Terras Bu layihənin ən diqqətçəkən xüsusiyyətlərindən biri 65.43 m²-lik geniş terras (B sahəsi) sahəsidir. Bu zona açıq havada qonaqların qəbulu, ailəvi yeməklər və ya sadəcə təbiətdən zövq alaraq dincəlmək üçün ideal bir platformadır. Terras evin daxili məkanı ilə həyətyanı sahə arasında harmonik bir keçid yaradır.
Müasir Hovuz Kompleksi Həyətyanı sahənin mərkəzində yerləşən modern hovuz (C sahəsi) mülkə xüsusi lüks çalarlar qatır. Estetik dizayna malik hovuz zonası həm isti yay günlərində sərinləmək, həm də mənzərəni tamamlayan vizual element kimi layihənin dəyərini artırır.
Eksteryer və Landşaft Villanın fasadında istifadə olunan modern xətlər, geniş panoramik pəncərələr və landşaftın yaşıllığı ilə birləşən ağ hasar detalları bu evi əsl sənət əsərinə çevirir. Tropik palmalar və klassik işıqlandırma elementləri ilə tamamlanan bağça dizaynı ev sahiblərinə özəl bir "istirahət vahəsi" təqdim edir.
